Plus Tower
주상복합


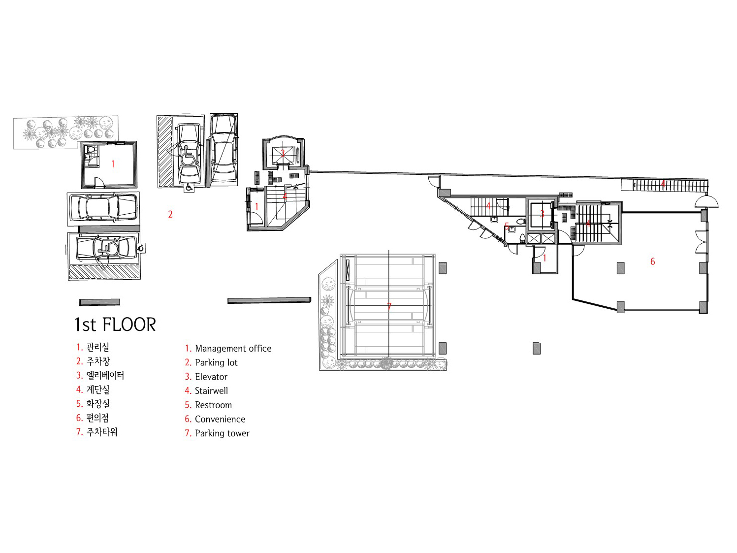
플러스타워는 맥락적으로 구관과 신관과의 리듬감, 앞뒤 전 후와의 관계성에서 배치된 건물이라고 할수 있다.
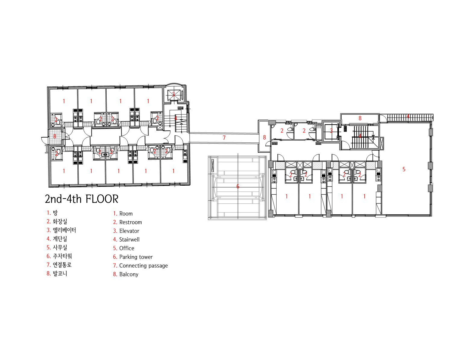
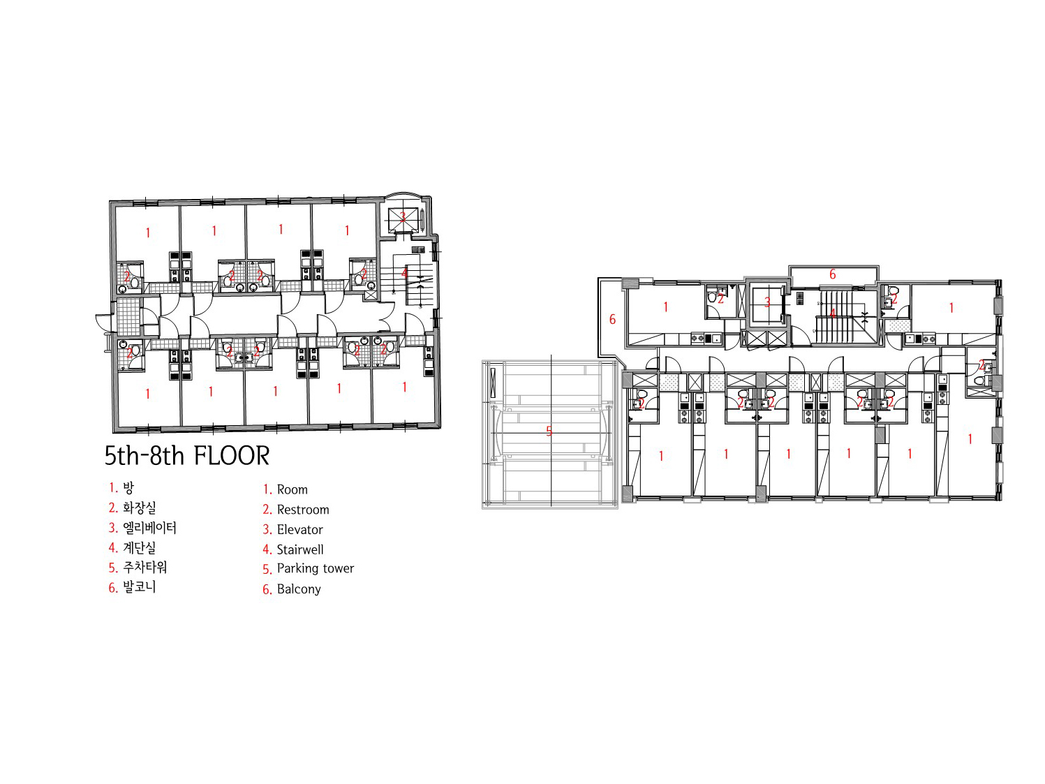
기존 오피스텔 건물에서 증축 되면서, 남부순환로 전면에 신관, 봉천로 전면에 구관이 위치하고 있으며, 건물에서 건물로 앞 뒤로 연결되어 두 동을 내부에서 연결되도록 설계되었다.
위의 건물은 서울대입구역과 300m내에 위치하므로 남부순환로 도로변으로는 상가를 배치하고 뒤로는 주택 공간을 배치함으로써 도로에서 올라오는 소음을 배제할 수 있고, 사무공간을 통해 주거 공간으로 들어올 수 있는 완충 공간으로 설계를 하였다.









